Leave a Message

Thank you for your message. We will be in touch with you shortly.

2344 Russell Road

$197,000
2344 Russell Road, Muskegon, MI 49445
2344 Russell Road

2344 Russell Road

$197,000

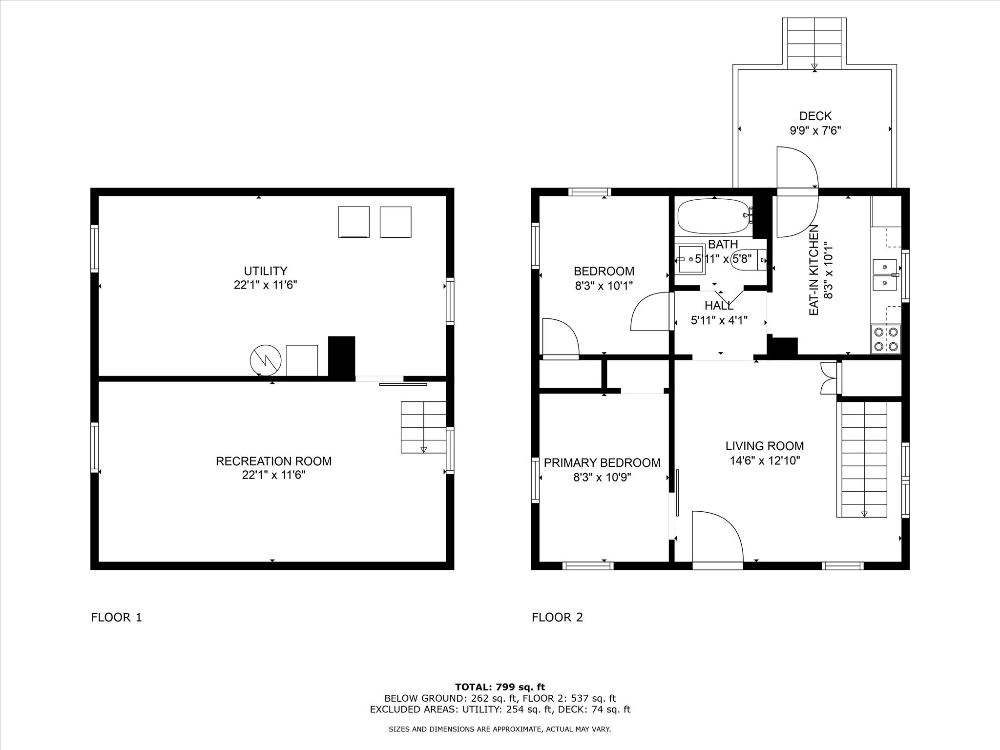
Nestled on over 2 beautiful wooded acres, this cozy 2-bedroom, 1-bath home offers both comfort and potential. Whether you're looking to enjoy the privacy of nature or planning to expand and build your dream home, this property offers endless possibilities. Inside, you'll find a finished basement--ideal for extra living space, a home office, or additional storage. The home is connected to city water, combining country charm with modern convenience. Don't miss this opportunity to own a peaceful retreat with room to grow. Schedule your private showing today!
Sandi Gentry
Sandi Gentry Contact

Features & Amenities

Interior

Total Bedrooms 2
Total Bathrooms 1
Full Bathrooms 1
Laundry Room Other
Appliances Dryer, Range, Refrigerator, Washer

Exterior

Stories 1
Garage Space 1.0
Water Source Public
Utilities Natural Gas Available, Electricity Available, Natural Gas Connected
ROOF Composition
Lot Features Wooded
Parking Detached
Heat type Forced Air
Sewer Septic Tank

Area & Lot

Status Sold
LIVING SPACE 864 Sq.Ft.
TOTAL AREA 576 Sq.Ft.
LOT SIZE 2.76 Acres
MLS® ID 25015216
Type Residential
Year Built 1938
School District Reeths-Puffer

Financial

SALES PRICE $197,000
REAL ESTATE TAXES $465/yr

Lending

Learn More

Work With Us

We remain the Top Real Estate Agents in our Board with RE/MAX because we treat each client the way we want to be treated and we want each client to feel like they are our only client.

CONTACT US